| 索 引 号 | 014345851/2018-00166 | 分 类 | 城乡规划,通知,县政府办公室文件 |
| 发布机构 | 盱眙县人民政府办公室 | 公开日期 | 2018-10-08 |
| 标 题 | 关于印发《盱眙县城市规划管理技术指标核定规则(试行)》的通知 | ||
| 文 号 | 盱政办发〔2018〕83号 | ||
| 时效说明 | |||
各镇人民政府、街道办事处、县各委办局、县各直属单位:
《盱眙县城市规划管理技术指标核定规则(试行)》已经县政府研究同意,现印发给你们,请认真贯彻执行。
盱眙县人民政府办公室
2018年9月20日
(此件公开发布)
盱眙县城市规划管理技术指标核定规则(试行)
1 总则
1.1 为规范规划管理行为,统一管理标准,根据有关法律、法规、技术规范和标准,结合本县实际,制定本规则。
1.2 本规则适用于盱眙县城乡规划区内新建、改建和扩建的建设项目,涉及建筑面积、容积率、建筑密度、建筑高度、绿地率和建(构)筑物退界、建筑间距计算的,应遵守本规则。
2 建筑面积
2.1 核定建筑工程的建筑面积应按江苏省《房屋面积测算技术规程》(DGJ32/TJ131-2011)(以下简称《规程》)执行,与本规则不一致的,按本规则执行。
2.2 建筑面积指标应分为计容积率建筑面积(以下简称计容面积)和不计容积率建筑面积。
3 容积率
3.1 容积率指标应精确到小数点后两位数。
3.2 在核定计容面积指标时,按以下规则计算:
3.2.1 除低层住宅外,同时满足以下条件的架空层(包括骑楼、过街楼和雨篷等)可不计入容积率:
(1)位于建筑底层(含综合楼裙房以上部分建筑首层),或与城市公共天桥、连廊、道路连通的楼层;
(2)至少有两个边长与城市或社区公共空间(不含天井等空间)紧密连通、方便到达(附图3.2.1—1、3.2.1—2),其中一个边长不得小于同一单元同侧边长1/2;
(3)用于公共活动、绿化、停车(含非机动车),且对公众无条件开放;
(4)除剪力墙或结构柱外无其他围护。
(5)门厅、楼梯间等为楼层服务的围合空间应计入容积率。
(6)层高不低于3.3米 。
3.2.2 独立设置、位于公共空间、开敞且对公众无条件开放的单层廊、亭等景观建筑可不计入容积率。
3.2.3 通向符合不计容条件的地下、半地下车库的汽车坡道、自行车坡道、出入口等附属建筑,可不计入容积率。
3.2.4 非住宅建筑中,在两个自然层(含两层)或9米高度范围内没有永久性顶盖或梁的平台(包括阳台等)可不计入,否则按阳台规则计算容积率。住宅建筑中,平台(包括阳台等)至平台上盖(包括构架)的垂直空间范围内,按阳台规则逐层计算容积率。(附图3.2.4—1, 3.2.4—2)
3.2.5 同时满足以下条件的不上人闷顶可不计入容积率:
(1)坡屋顶及外墙上没有门窗;
(2)结构楼板封闭,且除设于公共部位的检修孔(面积不大于0.5平方米)外没有其他孔洞;
(3)坡屋顶下部空间净高超过2.10米的部分占坡屋顶下部投影面积之比不大于30%。
超出以上规定的,视为可利用的空间,按《规程》计算计容面积。
3.2.6 层高不大于2.20米的技术层(夹层)中,设备转换层、结构转换层可不计入容积率,其他技术层(夹层)按其水平投影面积的1/2计入容积率;层高大于2.20米的技术层(夹层)按其水平投影面积全额计入容积率。避难层作为公共活动空间或绿化的可不计入容积率。
3.2.7 地下结构空腔或不利用空间以及“回填土”(或“覆土”)除剪力墙、结构柱外设置分隔墙体的地下室,层高不小于2.20米的,均计算建筑面积,其面积不计入容积率。(附图3.2.7)
3.2.8 鼓励建设项目使用建筑节能新技术,保温层建筑面积可不计入容积率。
3.2.9 装配式建筑建设项目,有文件明确规定的,按照相关规定执行。
3.3 地下室、半地下室按以下规则计算入容积率:
3.3.1 通过覆土方式抬高原有自然地坪,改变原有地形地貌设置的地下室和半地下室,仅作为停车设施以及设备用房使用,且上部景观绿化符合园林主管部门规定的,其建筑面积不计入容积率。不符合上述其建筑面积计入容积率;室外地面以上高度大于1.5m、小于或等于2.2m的,按1/2建筑面积计入容积率;室外地面以上高度超过2.2m的,全部建筑面积计入容积率。
3.3.2 新建建筑被自然地形(或通过覆土方式抬高原有自然地坪,改变原有地形地貌设置)部分掩埋的,当掩埋长度不足本层建筑外墙周长(包括沿下沉庭院设置的外墙,下同)1/2时,该层建筑面积全部计入容积率;掩埋长度超过本层建筑外墙周长1/2、不足2/3时,该层建筑面积的1/2计入容积率;掩埋长度超过本层建筑外墙周长2/3时,该层建筑面积不计入容积率。
3.3.3 建筑顶板标高超出室外地坪标高1.5米以内的建筑部分,视为被掩埋。
3.3.4 建筑地下室外墙外设置通风采光井的,不得与室内相通,其进深不应超过1.8米(取采光井围护结构外边线至地下室墙体外边线)。如超出则采光井地坪标高视作该建筑的室外地面标高,地下室建筑面积计入容积率。
3.4 建筑层高应与其功能相适应,按以下规则计算容积率:
3.4.1 住宅建筑(含公寓式住宅、公寓式酒店、服务型公寓)层高不得超过3.6米,办公、研发类建筑层高不得超过4.5米,普通商业建筑层高不得超过5.0米,大型商业建筑层高不得超过6.0米,工业生产性建筑层高不得超过8.0米。
建筑层高是指上下两层楼面或楼面与地面之间的垂直距离。
3.4.2 除工业外的各类建筑,凡超出上述规定的,计算容积率指标时,每超出2.2米,则该层建筑面积按该层实际建筑面积增加1倍计算,不足2.2米的,该层建筑面积按该层实际建筑面积增加0.5倍计算;其中住宅、公寓建筑的起居厅,办公、商业建筑的门厅、大堂、中庭、内廊、采光厅、大型会议室等公共部分仍按其实际建筑面积计算容积率。
3.4.3 工业生产性建筑,层高超过8.0米,则该层建筑面积按该层实际建筑面积增加1倍计算。
3.4.4 住宅建筑中,同时满足以下条件的共享空间可不计入容积率:
(1)位于门厅、餐厅或起居厅上空;
(2)至少有一个边长与上层公共空间(走廊或起居厅等)连通;
(3)共享空间高度小于或等于两个自然层;
(4)每套的共享空间不多于一个;
(5)开洞水平投影面积不超过下层总水平投影面积(包括共享部分)的20%;
(6)开洞部分没有网格梁等构件。
超出以上规定的,按水平投影面积逐层计入容积率。
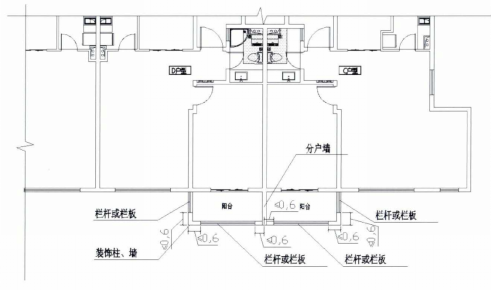
3.5 阳台按以下规则计算建筑面积、容积率:
(1)在主体结构内的阳台,应按其结构外围水平面积计算全面积,并计入容积率;
(2)在主体结构外的阳台进深(包括入户花园、空中花园等类似阳台的开敞、半开敞空间)不大于2.1m,按其水平投影面积的1/2计算建筑面积,并计入容积率;进深超过2.1m的,按整个阳台的水平投影面积计算建筑面积,并计入容积率。不规则阳台按其进深分段确定;
(3)以套为单位,阳台水平投影面积总和与套内水平投影面积的比值大于12%的,或每个单元内的阳台数量超过居住空间(卧室和客厅)个数的,超出部分全部计算建筑面积,并计入容积率。
凸阳台可设装饰柱,但单个柱宽最大不应超过0.6米。
3.6 空调搁板、建筑外部构件按以下规则计算容积率:
3.6.1 同时满足以下条件的空调搁板可不计入容积率:
(1)与建筑内部空间或阳台之间用实墙或栏板隔断;
(2)每个单元空调搁板的数量不超过居室(指住宅建筑中的卧室、客厅、书房、餐厅等独立的空间,下同)或主要功能空间的个数;
(3)每个空调搁板进深不大于1.0米,且面积不大于1.5平方米;
(4)至少有一个长边除护栏或百叶外没有任何实体围护(外突的柱、墙每边不得超过0.15米)。
不满足以上规定的,按阳台规则计算容积率。
3.6.2同时满足以下条件的设备平台可不计入容积率:
(1)位于主体结构外(附图3.6.2);
(2)与阳台紧邻的,用实墙或实体栏板隔断(局部可设检修孔);
(3)每个单元的居室或主要功能空间个数大于或等于3个,设备平台不多于一个且水平投影面积不大于4.0平方;
(4)除护栏或百叶外没有任何围护,设置的装饰柱、墙(分户墙及主体墙除外)每边不得超过0.15米。
(5)若设置设备平台则不得设置空调搁板。
不满足以上规定的,按阳台规则计算容积率。
3.6.3 除空调室外机搁板、阳台、挑廊、檐廊和首层无柱雨篷之外,建筑物外围护结构之外不得设置进深大于0.6米的各类建筑构件(如墙、梁、柱、板、花池、花架、装饰性阳台、装饰性幕墙、构件等),建筑物外围护结构之外的各类建筑构件如相接设置,进深累加计算。
3.7 飘窗按以下规则计算容积率:
3.7.1 窗台高度(窗台面与室内地面的高差)大于0.45米、最大进深(自墙体外边线至飘窗外边线)小于0.6米、结构净高(窗台面至飘窗顶板底)小于2.1米的飘窗不计建筑面积;如窗台高度小于0.45米或平均进深大于0.6米的,按水平投影面积的1/2计算建筑面积;如结构净高大于2.1米的,按水平投影面积计算建筑面积。
3.7.2 建筑项目含有飘窗设计的,须在申报图纸中提供飘窗大样。
3.7.3 飘窗立面效果不得有连续性,飘窗室内窗台上下部应为建筑外墙。
3.8 挑廊、檐廊按以下规则计算容积率:
住宅建筑最大进深超过1.8米的,办公、研发、酒店式公寓建筑最大进深超过2.4米的挑廊、檐廊,应按结构底板外围水平投影面积计算全面积。与挑廊、檐廊相接的各类建筑外部构件,均作为挑廊、檐廊控制,并计算面积。
4 建筑高度
4.1 平屋顶建筑,建筑高度为建筑室外设计地面至实体女儿墙的垂直高度。
4.2 坡屋顶建筑,建筑高度为建筑檐口高度和建筑屋脊高度的平均值。
建筑檐口高度为建筑室外设计地面至建筑顶层外墙外侧与坡屋面外侧交点处的标高的垂直高度。顶层檐口高低不一的,以累计边长最长的相应点的垂直高度计算。建筑屋脊高度为建筑室外设计地面至顶层屋面最高的屋脊结构标高的垂直高度。
4.3 建筑高度的计算应符合以下要求:
4.3.1 立面及平面上透空率均大于80%的装饰构架(栏杆)可不计入建筑高度,也可不纳入日照计算;立面及平面上透空率在80%以下的装饰构架(栏杆)可不计入建筑高度,但应纳入日照计算;百叶和格栅部分应视为有遮挡部分;玻璃部分,在计算建筑高度时,可视为无遮挡部分,但在日照计算时应视为有遮挡部分。
4.3.2 特殊造型(如薄壳结构、波浪形和球形拱顶等)的建筑髙度自建筑室外设计地面至薄壳顶、波顶或拱顶最高处计算。
5 建筑密度
5.1 在核定建筑密度指标时,以下情形可不计入:
5.1.1 顶板覆土厚度不小于0.6米且结构顶板高出室外地坪基准标高不大于1.5米的地下室和半地下室。
5.1.2 开敞且对公众无条件开放的单层亭、廊等景观小品建筑及自行车棚。
5.1.3 地下通道出入口。
5.1.4 结构顶板高出室外地坪基准标高不大于1.5米的室外台阶、坡道。
5.2 在核定建筑密度指标时,以下情形应计入:住宅建筑中,两层(含两层)范围内所有建筑及其附属物(包括架空、门廊平台、机位、水平构件、门厅、雨篷等)水平投影面积,屋顶出挑的屋檐除外。
商业、办公建筑中,室外地坪起4.5米高度范围内所有建筑及其附属物(包括架空、门廊平台、机位、水平构件、门厅、雨篷等)水平投影面积,屋顶出挑的屋檐除外。
6 绿地率
6.1 绿地率计算按照《江苏省城市居住区和单位绿化标准》(DGJ32/TJ? 169—2014)和《淮安市建设项目配套绿地管理技术规定》等有关文件执行。
7 建(构)筑物退界距离
7.1 建筑后退用地红线距离以建筑物地面以上最突岀的外墙(含柱)边线计算,不包括保温层及装饰面层。
7.2 后退用地红线小于3米的地上空间范围,不得外伸或外挑任何建(构)筑物。特殊地段,规划设计条件中有另行规定的除外;相邻用地单位间有特别协议的除外。
7.3 后退用地红线大于3米的地上空间范围,在满足消防、交通和施工安全要求的前提下,可以外伸或出挑符合以下条件的建(构)筑物:
7.3.1 高差不大于0.6米、进深不大于2.0米的踏步和坡道。
7.3.2 满足以下要求的的局部出挑:雨篷、屋檐、构架等附属构件和开放的阳台、楼梯平台、挑廊等,局部突出部分的总长度少于相应建筑边长1/2,且出挑(突出部分)连续长度不超过8米,局部突出部分的进深不大于后退用地红线的1/3,突出部分距用地红线距离不低于3米。
7.3.3 没有顶盖且实体护栏高度不大于0.6米的地下室坡道、踏步。
7.3.4 经规划批准的过街连廊和过街楼。
7.4 除有特别规定,小型附属建筑及围墙退界距离应满足以下要求:
7.4.1 临城市道路、绿化等公共用地,独立建设的门卫房、垃圾房、燃气调压站房、泵房、独立配电房等小型附属建筑退用地红线应不小于3.0米,历史文化街区等特殊地段除外。
7.4.2 临城市道路、绿化等公共用地的围墙基础不应超出用地红线。
7.4.3 相邻用地单位间共用的围墙中心线应与用地红线对齐。
8 建筑间距
8.1 在满足日照和消防要求的前提下,以下建(构)筑物可不计入建筑间距:
8.1.1 结构顶板高出室外地坪基准标高不大于1.5米的地下室和半地下室。
8.1.2 满足以下要求的的局部出挑:雨篷、屋檐、构架等附属构件和开敞的阳台、楼梯平台、挑廊等,局部突出部分的总长度少于相应建筑边长1/2,且出挑(突出部分)连续长度不超过8米。
8.1.3 没有顶盖且实体护栏高度不大于0.6米的地下室坡道、踏步和风井。
8.2 地面立体机械停车位应按非住宅的标准控制与其他建筑的日照和最小间距。
8.3 住宅建筑有非住宅功能的裙房(包括门斗等局部突出)时,裙房高度小于或等于10米的,按低层非住宅建筑控制最小间距;裙房高度超过10米且小于或等于24米的,按多层非住宅建筑控制最小间距。
8.4 有裙房的非住宅建筑位于住宅建筑南侧或东西侧时,其与住宅建筑的最小间距计算中,非住宅建筑的裙房高度小于或等于10米的,按低层居住建筑间距控制;裙房高度超过10米且小于或等于24米的,按多层居住建筑间距控制;裙房高度超过24米时,按高层居住建筑间距控制。
8.5 在符合日照、环保、消防、供电等相关要求的前提下,独立设置的单层传达室与其南北侧住宅的最小间距不得小于6米;独立设置的单层配电房按照低层住宅建筑计算最小间距,并满足供电部门要求。
8.6 相对山墙一侧或两侧都无窗户、阳台或开门的住宅建筑之间如不紧邻,建筑相对山墙间距不得小于4.0米。在满足日照和消防要求外,还应满足以下要求:小高层与小高层建筑之间相对山墙间距不得小于8.0米,小高层与高层建筑之间山墙间距不得小于9.0米;高层与高层建筑相对山墙间距不得小于10.0米。
8.7 当建筑之间形成对角布局(指一建筑在另一建筑的正向及侧向延长线之外),且住宅建筑为被遮挡建筑时,遮挡建筑与被遮挡住宅建筑的最小间距应符合以下规定:
(1)当遮挡建筑为低层时,遮挡建筑与被遮挡住宅建筑的最小间距应满足水平距离(东西或偏东西方向,下同)大于9米或垂直距离(南北或偏南北方向,下同)大于12米的要求;
(2)当遮挡建筑为多层时,遮挡建筑与被遮挡住宅建筑的最小间距应满足水平距离大于13米或垂直距离大于20米的要求;
(3)当遮挡建筑为小高层时,遮挡建筑与被遮挡住宅建筑的最小间距应满足水平距离大于15米或垂直距离大于30米的要求;
(4)当遮挡建筑为高层时,遮挡建筑与被遮挡住宅建筑的最小间距应满足水平距离大于15米或垂直距离大于40米的要求。
以上情况需进行日照计算的,还应满足日照计算的要求。
9 术语释义
9.1 服务型公寓(公寓式酒店)
属于公共建筑,应满足以下要求:
(1)在B(B1、B14)用地分类上建设;
(2)除物业管理用房可参照一般住宅标准设置外,其他配套公共服务设施按公建标准设置;
(3)日照标准及建筑间距按公建标准执行;
(4)建筑单体平面应采用通廊式布局,不得按单元式住宅套型设计;
(5)满足公共建筑的其他相关要求;
(6)外立面应公建化,不得设置外挑式飘窗,不得设置开敞式阳台、走道;
(7)建筑最小分割单元的套内建筑面积不应小于30平方米;
(8)在设计图纸和文件中注明“非住宅”。
9.2 公寓式住宅
属于居住建筑,是一种有别于单元式住宅的住宅类型,一般采用通廊式布局,应满足以下要求:
(1)在居住或商住综合用地上建设,建设比例应符合规划条件中的要求;
(2)其配套公共服务设施按一般住宅标准设置;
(3)日照标准及建筑间距按一般住宅标准执行;
(4)满足居住建筑的其他相关要求;
(5)在设计图纸和文件中注明“公寓式住宅”,不再使用“酒店式公寓”的称谓。
9.3 办公、研发类建筑
属于公共建筑,可分割销售的办公、研发类建筑应满足以下要求:
(1)建筑单体平面应釆用公共走廊式布局,内部平面禁止出现单元式办公、公寓式办公等“类住宅”建筑形式;
(2)除食堂外不得设置厨房;
(3)开水间或者饮水供应点、卫生间、管道井应集中设置;
(4)建筑最小分割单元的套内建筑面积不应小于60平方米,其中办公、研发等建筑如确需设置带独立卫生间的套间,其每一分割单元的套内建筑面积应不小于150平方米,此类套间面积不应超过本层建筑面积的20%;
(5)外立面应公建化,不得设置外挑式飘窗,不得设置开敞式阳台、走道;
(6)独立式或联排布局的小型办公楼,其分割销售单元的计容面积不得小于500平方米;
(7)立面应具备公共建筑的外立面形式与建筑特点。
9.4 设备转换层
指建筑物的上部与下部因平面使用功能有重大转换,通过该楼层专用于暖通、给排水、电气等设备及管道的转换,且无其他使用功能。
9.5结构转换层
指建筑物某层的上部与下部因平面使用功能不同,该楼层上部与下部采用不同结构类型,通过该楼层进行结构转换,且无其他使用功能。
9.6 主体结构
接受、承担和传递建筑上部荷载,维持上部结构整体性、稳定性和安全性的有机联系的构造,包括承重墙、结构柱、剪力墙等。住宅建筑中,凹阳台如果面宽结构净跨(可包括相邻阳台)大于8.0米,可视为主体结构外。钢筋混凝土建筑中,尺寸≤0.24×0.24米的柱子可视为构造柱,规划报批的建筑图纸中须明确表达主体结构,测绘部门在规划核实阶段须根据经审图中心审核通过的结构图进行面积复核。主体结构内外的区分,必要时需由规划部门组织专题论证。(附图9.6)
9.7 内天井
指四周均被封闭建筑空间(包括户之间设置分户墙的空间)围合,且无顶盖的空间。
9.8 透空率是指装饰构架无遮挡部分的面积占其外轮廓投影面积的比例。
10 附则
10.1 本《规则》自公布之日起执行。在本规则执行前已签订正式土地出让合同或划拨决定书,且已经规划部门审定建设工程设计方案的,执行原规则。
10.2 上位规范、规定若有更新版本,涉及与本《规则》不符的强制性内容的按新的规范、规定执行。
附录 部分条文解释
3.2.1 考虑到架空的实际使用功能,规定至少有两面开敞且与城市或社区公共空间连通,方便到达。附图3.2.1—1、3.2.1—2。低层住宅建筑,底层有类似于架空的空间,参照《规程》中门廊的相关规定计算容积率,出入口设置的雨篷应按《规程》的相关规定执行。

附图3.2.1—1与围合天井(空间)连通架

附图3.2.1—2 除剪力墙(或结构柱)外无其他维护架空
3.2.4 非住宅建筑中,平台(阳台等)在规定的高度范围内有梁或顶盖的,按照阳台规则计算容积率(附图3.2.4—1)。住宅建筑中,平台(阳台等)只要是在垂直空间范围内有构架或顶盖的,垂直空间范围内的各层无论是否有平台或构架,均按阳台规则计算容积率(附图3.2.4—2)。

附图3.2.4—1非住宅建筑中平台(阳台)

附图3.2.4—2住宅建筑中平台(阳台)
3.2.5 “闷顶”指的是坡屋面形式的闷顶,平屋面设置的闷顶按照“3.2.6”技术层(夹层)的相关规定计算容积率,设置的检修孔若楼板处无公共部位的,也可设在公共部位的外墙处,但检修孔的尺寸需符合要求。坡屋顶下部净高大于2.10米的部分,与此坡屋顶对应下部空间投影面积不大于30%。
3.2.7 住宅建筑中,主楼附属的地下室,有结构空腔的,层高大于2.20米的,计算建筑面积,且按地下室的相关规定计算容积率,有“回填土”(或“覆土”)而设置有隔墙的,按结构空腔的计算方式计算建筑面积及容积率。附图3.2.7。

附图3.2.7“回填土”(或“覆土”)空间有隔墙地下室
3.5 主体结构内的阳台无论进深多少,按照规则均计入容积率。“本层水平投影面积”指的是,在本层计算建筑面积的部分及开敞阳台水平投影面积之和,住宅建筑中设置的开敞阳台,除分户墙体或主墙体的部分,均需开敞。附图3.5。

附图3.5结构外阳台开敞面示意图
3.6.2 设备平台与阳台之间设置的检修孔,以能满足设备安装的尺寸设置,不得设置标准的门洞。设备平台除分户墙体或主墙体的部分,均需开敞。附图3.6.2。

附图3.6.2设备平台开敞示意图
9.6 主体结构内、外的区分见附图9.6。

附图9.6主体结构内外示意图