| 主题分类 | 体裁分类 | ||||
| 索 引 号 | 014346483/2024-00059 | 发布机构 | 盱眙县行政审批局 | ||
| 文 号 | 公开日期 | 2024-03-16 | |||
| 文 号 | 公开日期 | 2024-03-16 | 失效日期 | ||
| 名 称 | 关于欧洲城商住房项目规划设计方案变更的批前公示 | ||||
| 关 键 词 | |||||
| 内容概述 | |||||
| 时效说明 | |||||
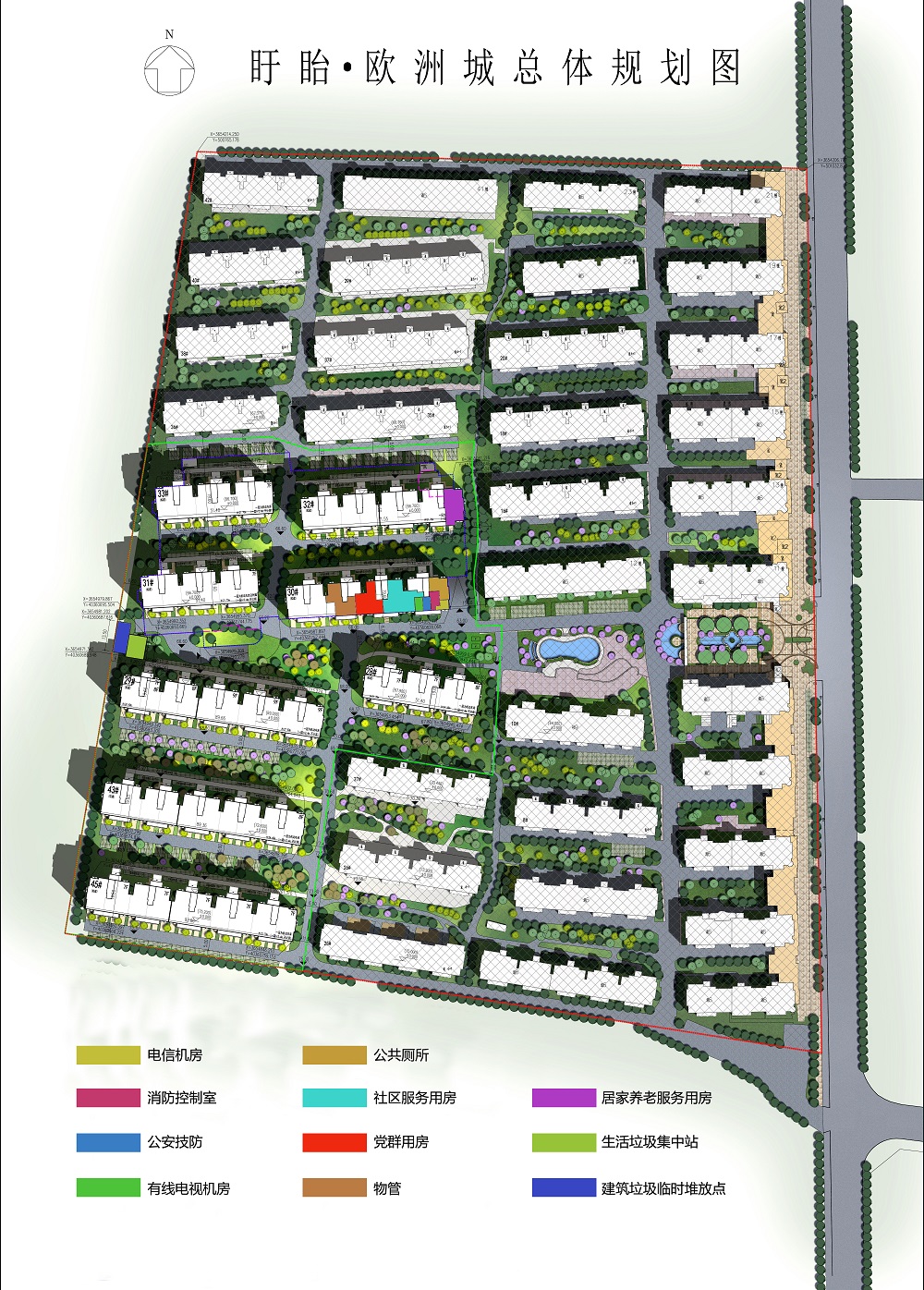
欧洲城商住房项目位于盱城街道兴府路888号,现建设单位申请对项目方案进行变更,具体如下:
1.在28、29、31、32、33、43、45#楼的北侧增设配电房出口,地库轮廓线调整,绿化布局同步调整;
2.原经济适用房改为商品房,补交差价款;
3.经济技术指标变更:总建筑面积由原237706.93㎡变更为238088.90㎡;计容面积由原198953.85㎡变更为198974.18㎡;建筑占地面积由原33093.24㎡变更为33098.12㎡;建筑密度由原29.94%变更为29.95%;绿地率达到30.0%以上,满足规划要求。
经审查,拟同意该变更。现通过《盱眙日报》、项目现场及盱眙县人民政府网站对该项目规划设计方案和绿化设计方案变更进行批前公示,公示时间从2024年3月16日起至2024年3月25日止。
欢迎社会各界以书面形式提出意见。
联系人:宗家俊 杜世玮
联系电话:0517-88200030
联系地址:盱眙县企业服务大厦三楼
盱眙县行政审批局
2024年3月16日

